Previous | Next | Discuss :: Free Advice (General Feng Shui)
Dear Josephine,
Yes, usually, it is best to check for `leaks' in the house, first.
It would be nice if we can enhance but often, we forget that we must first fix-the-leaks.
From a Shapes and Forms point, there are several leaks in your home. (Frankly, I have not used other tools, it it involves more anlysis - due to a busy schedule). But from a Shapes and Forms and forms view, there are several leaks:-
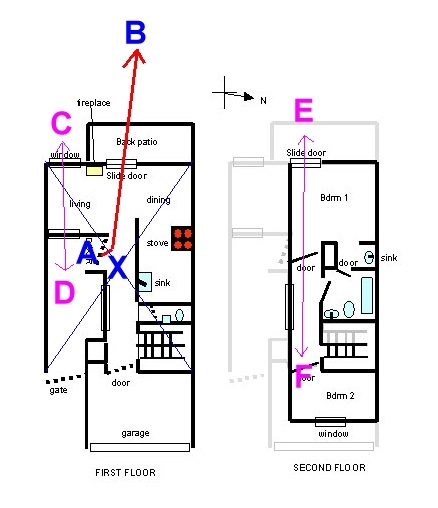
1. Narrow hallway, which is on one side of the house.
2. Markings A to B:-
The back patio sliding door. The path of qi from A to B is a direct path. And not auspicious. (Especially if the door is opened).
In addition, because of this long corridor, there is supressed Qi. And it can also leak the other way thru the door towards the garage area.
3. Markings C to D:-
Based on your diagram, it looks like there are widows at C or D. If so, there is a potential leak of qi especially if the windows are opened. Try to open alternative windows in this case.
4. Marking X:-
The entrance into the house is close to the centrepoint of the house at Marking X. There is compressed qi (narrowing) at this area. Upstairs also has similar compressed Qi at markings E and F.
5. In your home, it seems that qi flow cannot properly meander from the living room area to the other side i.e. garage facing side and vice-versa. This has an impact or strifle your luck.
Warmest Regards,
Cecil
On 12/11/2002 6:31:00 PM, Josephine Elizaga wrote:
>Hi to the feng shui masters,
>
>I wish I had read about feng
>shui when I was buying my
>home. I love the location of
>my little townhouse but I feel
>the sectors in my house need
>improving because of bad
>layout. (please see attached
>jpg).
>
>I think my career sector is
>missing. The relationship
>sector is in the garage. My
>fame/reputation is in the
>kitchen and my family sector
>has the fireplace. I have
>narrow hallways that with 2-3
>doors aligned. On top of that,
>the house number is 2476.
>Whew! :-)
>
>I hung a crystal on the
>hallways. I placed plants
>around the fireplace. I placed
>terracota pots in the kitchen.
>But I haven't been promoted in
>5 years even though my boss
>keeps promising it. I still
>feel money is going out of my
>hands too fast even if I
>budget it. Some things are
>still not working for me.
>
>Please let me know other
>improvements I can make. I am
>female, Kua number 8, fire
>horse year.
>
>Thank you for your help.
>
>Josephine
townhouse.jpg
Illustration (54,337 bytes)
|
|
[ Site Search | Forum Search | Picture Search | Site Map ] |
|
|
|
|
||
|
Help Desk: (65) 9785-3171 |
||
|
|
|
|
|
Highlights |
|
Extend your learning with Master Cecil Lee's Applied Feng Shui Made Easy Book. |
|
Site Navigation |
|
|
|
|
Google SiteSearch |
Sponsored Links |
|
|
![]()